Apartament ideal cu 4 camere si terasa impresionanta – The Grand Kristal Residence City, Sector 4

Sector 4, Parcul Tudor Arghezi, Bd. Metalurgiei, rond Metro Berceni
350.000 € (+ TVA)
Comision 0% cumpărătorRate lunare de la . Vezi detalii
4 Camere
Etaj: 1
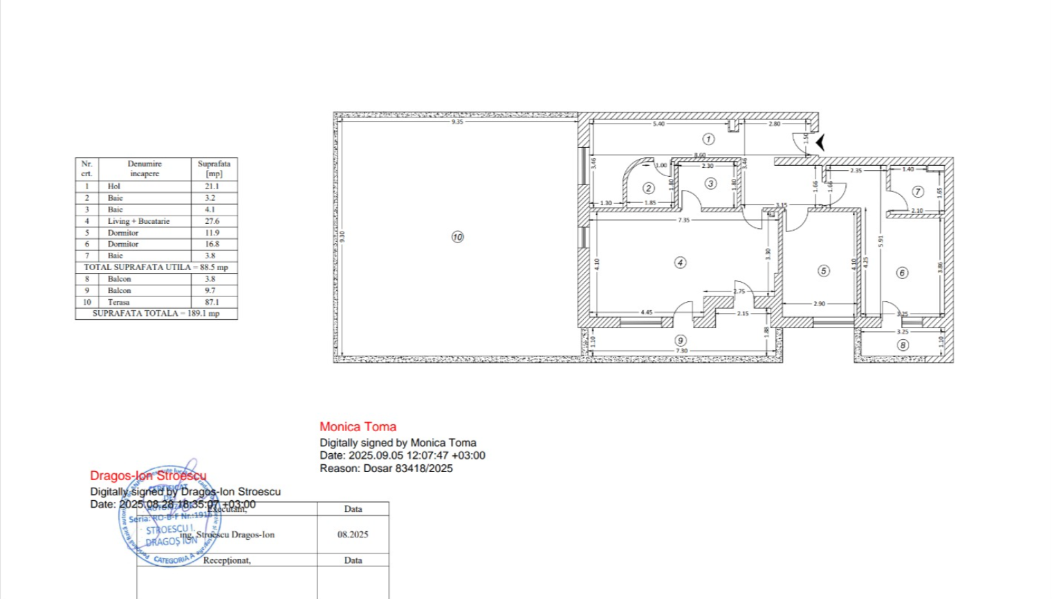
S.U.: 88.5mp
S.U.T.: 189.1
Grup sanitar: 4
Balcon: 3
ID Anunt: 126668

Caracteristici

  • Suprafata utila:88.5mp
  • Suprafata total utila:189.1mp
  • Compartimentare:Semidecomandat
  • Regim inaltime:P+11

Schita proprietate

Finisaje si dotari

  • parchet
  • gresie
  • vopsea lavabila
  • faianta
  • usi de interior
  • usa metalica antiefractie
  • obiecte sanitare
  • geamuri tripan
  • centrala termica apartament
  • incalzire in pardoseala
  • glafuri interior
  • glafuri exterior
  • videointerfon
  • tamplarie PVC
  • piatra
  • balcoane zidite
  • balcoane sticla securizata
  • lift
  • placari ceramice
  • sistem supraveghere
  • sensor pentru incendii

Prezentare

Apartament 4 camere cu terasa impresionanta | The Grand Kristal Residence City– Faza II, Parc Tudor Arghezi

Va prezentam spre vanzare un apartament de 4 camere, situat in cadrul ansamblului The Grand Kristal Residence City – Faza II, o proprietate speciala, configurata pentru confort extins, functionalitate si un standard superior de locuire.

Amplasat la etajul 1/11, apartamentul este compartimentat inteligent si dispune de 3 dormitoare, living cu bucatarie open space, 4 bai, 2 balcoane si o terasa spectaculoasa, partial inchisa, care transforma aceasta locuinta intr-o optiune rar intalnita in oferta zonei.

Unul dintre principalele puncte forte ale proprietatii este terasa generoasa, completata de jardiniere integrate, gandita ca o extensie fireasca a spatiului interior. Aceasta ofera un cadru ideal pentru relaxare, amenajare outdoor sau timp petrecut in familie, intr-un ambient privat si elegant.

Apartamentul beneficiaza de un nivel superior de finisare, cu un buget pentru finisaje dublu fata de un apartament standard, aspect care se reflecta in calitatea materialelor, a executiei si in atentia acordata fiecarui detaliu.

Din punct de vedere tehnic si estetic, proprietatea integreaza dotari premium, menite sa ofere un plus real de confort si eficienta:

  • Incalzire in pardoseala

  • Tamplarie PVC cu geam tripan

  • Finisaje premium, peste standardul obisnuit al ansamblului

  • Living cu bucatarie open space, luminos si bine proportionat

  • 3 dormitoare bine delimitate

  • 4 bai, pentru un plus de confort si functionalitate

  • 2 balcoane

  • Terasa ampla, partial inchisa

  • Ceramica flotanta montata pe zona de terasa exterioara

Prin suprafata generoasa, compartimentarea complexa si pachetul de dotari premium, acest apartament se adreseaza cumparatorilor care cauta o locuinta diferita fata de oferta standard din zona. Este o proprietate care imbina foarte bine partea practica a vietii de zi cu zi cu avantajele unui spatiu modern, bine executat si gandit pentru confort pe termen lung.

  • Magazin
  • Transport public
  • Scoala/Gradinita
  • Cafenea/Restaurant
  • Farmacie/Spital
  • Parcuri si zone de agrement

Puncte de interes

Zona The Grand Kristal Residence City este una dintre cele mai dezvoltate si bine conectate din sudul Capitalei, oferind un mix ideal intre confort urban, accesibilitate si multiple facilitati pentru viata de zi cu zi.

Proiectul este amplasat in proximitatea celor mai importante puncte de interes din Sectorul 4, ceea ce il face potrivit atat pentru locuire proprie, cat si pentru investitie:

  • Centre comerciale: Grand Arena Mall, Metro, Auchan, Lidl, Kaufland, Carrefour, Jumbo, Hornbach, Selgros

  • Restaurante, cafenele, farmacii, saloane de infrumusetare si unitati bancare in incinta si in apropiere

  • Institutii de invatamant de stat si private

  • Centre medicale si clinici moderne

  • Parcul Tudor Arghezi, Patinoarul Berceni Arena, terenuri de sport si centre wellness

Accesul catre restul orasului este facil, datorita infrastructurii moderne si retelei de transport bine dezvoltate. Statiile STB sunt usor accesibile din zona Bd. Metalurgiei, prin Dealul Bradului sau Str. Dumitru Brumarescu, iar statiile de metrou Aparatorii Patriei, Dimitrie Leonida, Berceni si Tudor Arghezi se afla la distanta convenabila.

In plus, zona beneficiaza de conexiuni rapide catre centrul orasului, dar si catre Centura Capitalei si A0, un avantaj important pentru mobilitate si acces rapid in orice directie.

Ansamblul The Grand Kristal Residence – Faza II continua succesul primei etape si pastreaza aceleasi standarde ridicate de calitate, siguranta si organizare, intr-un cadru rezidential contemporan, bine planificat si sustenabil.

Pret si modalitati de plata

Pret apartament: 350.000 Euro + TVA

Imaginile prezentate privind mobilierul, amenajarile interioare, dotarile, cat si variantele de finisare sunt propuneri de amenajare si mobilare ce pot fi executate contra cost, acestea au scop pur informativ si nu au caracter angajant, de orice natura, pentru Sud Rezidential Real Estate SRL sau dezvoltatorii imobiliari.

    Trimite mesaj


    Ramona Ganea

    Ramona Ganea

    0729.572.570ramona@sudrezidential.roProgrameaza vizionare

    Distribuie linkul unui prieten pe

    Banner

    Alte anunturi asemanatoare

    Apartament spatios cu 4 camere, gata de mutare, zona Mall Grand Arena, Sectorul 4

    Apartament spatios cu 4 camere, gata de mutare, zona Mall Grand Arena, Sectorul 4

    Sector 4, Grand Arena Mall, Parc Tudor Arghezi, Bd.Metalurgiei
    215.000 € (Nu se aplica TVA)
    4 camere
    S.U.:93.58mp
    ID: 122405
    Exclusivitate
    Apartament decomandat cu 4 camere, disponibil imediat, The Grand Kristal Residence

    Apartament decomandat cu 4 camere, disponibil imediat, The Grand Kristal Residence

    Sector 4, Bd. Metalurgiei, rond Metro Berceni, Parc Tudor Arghezi, The Grand Kristal Residence City
    220.000 € (Nu se aplica TVA)
    4 camere
    S.U.:92.61mp
    Exclusivitate
    Apartament 4 camere, finisare premium, mutare rapida, suprafata 104 mp, zona Bd. Metalurgiei

    Apartament 4 camere, finisare premium, mutare rapida, suprafata 104 mp, zona Bd. Metalurgiei

    Sector 4, Parcul Tudor Arghezi, Metro Berceni, Bd. Metalurgiei
    218.000 € (Nu se aplica TVA)
    4 camere
    S.U.:92.45mp
    The Grand Kristal Residence City Metalurgiei Faza I

    SudRezidential.ro iti ofera o experienta cat mai personalizata in procesul de cautare a proprietatii imobiliare potrivite. In acest scop folosim cookie-uri pentru a personaliza continutul anunturilor si pentru a analiza traficul.

    Trimite Mesaj
    Suna
    Locatie
    WhatsApp Devino partener