Apartament cu o camera, mobilat si utilat – ideal investitie, Popesti-Leordeni, Sos. Oltenitei

Ilfov, Strada Fermei, Soseaua Oltenitei, Primaria Popesti-Leordeni, La Strada Mall
53.900 € (Nu se aplica TVA)
Comision 0% cumpărătorRate lunare de la . Vezi detalii
1 Camera
Etaj: Mansarda
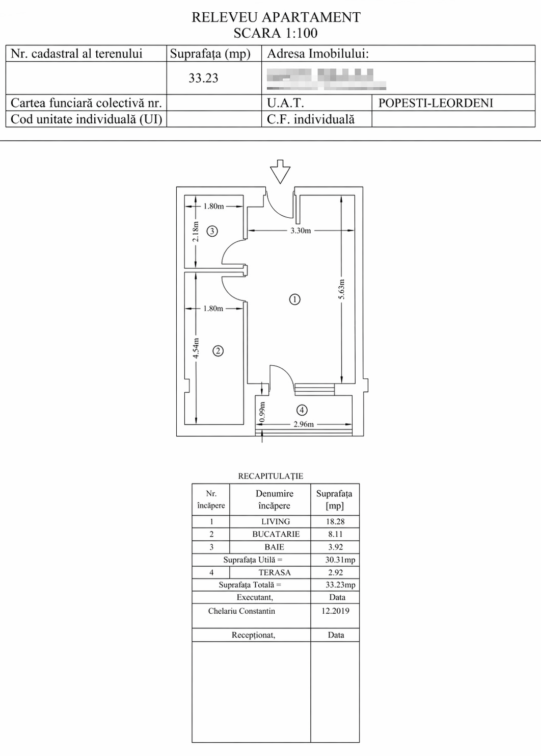
S.U.: 30.31mp
S.U.T.: 33.23
Grup sanitar: 1
Balcon: 1
ID Anunt: 129849

Caracteristici

  • Suprafata utila:30.31mp
  • Suprafata total utila:33.23mp
  • Compartimentare:Decomandat
  • Regim inaltime:P+2e+m

Schita proprietate

Finisaje si dotari

  • parchet
  • gresie
  • faianta
  • vopsea lavabila
  • usi de interior
  • usa metalica antiefractie
  • obiecte sanitare
  • centrala termica apartament
  • calorifere
  • interfon
  • mana curenta inox
  • balcoane traforaj metallic

Prezentare

Apartament cu o camera, investitie sigura, chirias existent – Popesti-Leordeni, Str. Fermei, acces Sos.Oltenitei

Va oferim spre vanzare o locuinta complet mobilata si utilata, situata la mansarda unui imobil modern cu regim de inaltime P+2+M, construit in 2019, pe Strada Fermei – Popesti-Leordeni.

Proprietatea se remarca printr-o compartimentare eficienta si o suprafata optimizata, fiind o alegere excelenta atat pentru locuire proprie, cat si pentru investitie, cu posibilitatea de preluare a chiriasului existent.

Suprafata este bine organizata, oferind un spatiu confortabil si functional:

  • Suprafata totala: 33.23 mp
  • Living: 18.28 mp
  • Bucatarie: 8.11 mp
  • Baie: 3.92 mp
  • Balcon: 2.92 mp

Apartamentul se vinde complet mobilat si utilat, fiind pregatit pentru mutare imediata sau pentru continuarea activitatii de inchiriere fara investitii suplimentare.

Printre principalele avantaje:

  • Imobil construit in 2019
  • Mobilata si utilata complet
  • Posibilitate preluare chirias – randament imediat
  • Compartimentare eficienta
  • Ideala pentru investitie sau locuire
  • Magazin
  • Transport public
  • Scoala/Gradinita
  • Cafenea/Restaurant
  • Farmacie/Spital
  • Parcuri si zone de agrement

Puncte de interes

Proprietatea este amplasata in zona Soseaua Oltenitei – Popesti-Leordeni, una dintre cele mai dinamice si cautate zone din sudul Capitalei, aflata in continua dezvoltare.

Zona ofera acces rapid catre Bucuresti, fiind foarte bine conectata prin mijloace de transport in comun, dar si prin artere principale ce asigura legatura facila cu Soseaua de Centura si principalele puncte de interes din oras.

In proximitate regasim multiple facilitati esentiale pentru un stil de viata confortabil: supermarketuri, farmacii, scoli, gradinite, restaurante si centre comerciale, toate la distanta mica de mers.

Pozitionarea si potentialul de dezvoltare al zonei transforma aceasta proprietate intr-o alegere sigura, atat pentru locuire, cat si pentru investitie pe termen lung.

Pret si modalitati de plata

Pret de lista: 53.900 Euro (nu se aplica TVA)

Aceasta proprietate se poate achizitiona prin orice tip de credit bancar sau prin plata numerar.

Daca inca nu stiti ce tip de credit este mai avantajos pentru dumneavoastra, departamentul nostru financiar Credit24h.ro va sta la dispozitie in vederea identificarii solutiei potrivite de finantare si intocmirii dosarului bancar pentru obtinerea creditului necesar achizitiei. 

Efectueaza rapid o simulare de credit online accesand linkul atasat si verifica-ti gratuit eligibilitatea: https://simulator.credit24h.ro/

    Trimite mesaj


    Catalin Isache

    Catalin Isache

    0729.572.570catalin.isache@sudrezidential.roProgrameaza vizionare

    Distribuie linkul unui prieten pe

    Banner

    Alte anunturi asemanatoare

    Apartament cu o camera | Gata de mutare, zona Brancoveanu – Mall Grand Arena, Sectorul 4

    Apartament cu o camera | Gata de mutare, zona Brancoveanu – Mall Grand Arena, Sectorul 4

    Sector 4, Mall Grand Arena, Strada Postalionului, Bd. Constantin Brancoveanu, Bd. Metalurgiei
    71.000 € (+ TVA)
    1 camera
    S.U.:45.5mp
    ID: 131174
    Exclusivitate
    Locuinta ideala si spatioasa cu o camera, Confort Urban Residence – Targ Pucheni, Rahova

    Locuinta ideala si spatioasa cu o camera, Confort Urban Residence – Targ Pucheni, Rahova

    Sector 5, Targ Pucheni, Soseaua Salaj, Rahova, Parc Humulesti
    53.000 € (Nu se aplica TVA)
    1 camera
    S.U.:31.87mp
    ID: 131027
    Apartament cu o camera, gata de mutare, Soseaua Salaj, Sectorul 5

    Apartament cu o camera, gata de mutare, Soseaua Salaj, Sectorul 5

    Sector 5, Piata Rahova, Targ Pucheni, Parc Humulesti, Sos.Salaj
    61.500 € (Nu se aplica TVA)
    1 camera
    S.U.:30.59mp
    ID: 110391

    SudRezidential.ro iti ofera o experienta cat mai personalizata in procesul de cautare a proprietatii imobiliare potrivite. In acest scop folosim cookie-uri pentru a personaliza continutul anunturilor si pentru a analiza traficul.

    Trimite Mesaj
    Suna
    Locatie
    WhatsApp Devino partener