Spatiu comercial de inchiriat, locatie excelenta, 275 mp, vitrina ampla, Bd.Decebal, Piata Muncii

Sector 3, Metrou Piata Muncii, Bulevardul Mihai Bravu, Bulevardul Decebal
VANDUT
Rate lunare de la . Vezi detalii
S.T. 275.34mp
Latime: 20.5ml
Inaltime: 3.5
ID Anunt: 108024

Caracteristici

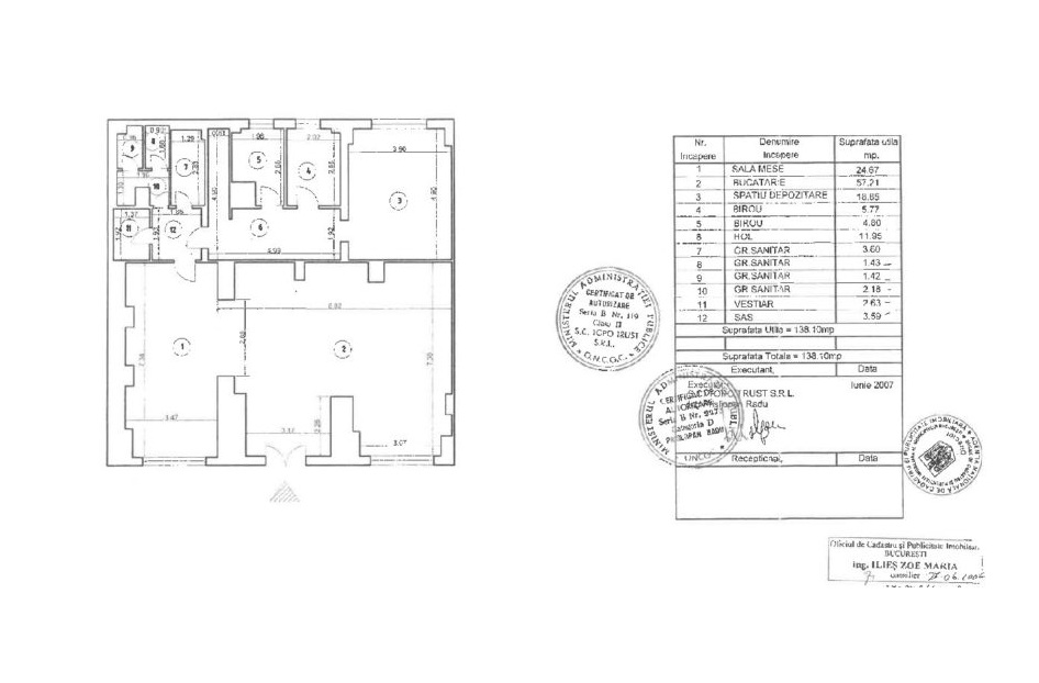
  • Suprafata total utila:275.34mp
  • Latime vitrina:20.5
  • Inaltime:3.5
  • Regim inaltime:P+7 e
  • Compartimentari:Beton, caramida, rigips

Schita proprietate
Schita proprietate
Schita proprietate

Finisaje si dotari

  • gresie
  • faianta
  • vopsea lavabila
  • mocheta
  • obiecte sanitare
  • tamplarie PVC
  • centrala termica apartament
  • calorifere

Prezentare

Spatiu comercial de inchiriat – 275 mp, vitrina 20.5 ml | Bulevardul Decebal – Piata Muncii, Sector 3, Bucuresti

Va propunem spre inchiriere un spatiu comercial de exceptie, cu o suprafata generoasa de 275 mp, amplasat pe Bulevardul Decebal, in imediata apropiere de Piata Muncii, una dintre cele mai importante zone comerciale si de business din Bucuresti.

Prezentarea spatiului

Spatiul este situat la parterul unui imobil cu regim de inaltime P+7E finalizat in anul 1989 si beneficiaza de:

  • inaltime libera de 3.5 m

  • vitrina stradala impresionanta, de 20.5 ml

  • 3 intrari principale dinspre bulevard si o intrare secundara din spate (pentru aprovizionare)

  • compartimentare flexibila, realizata cu pereti din sticla, ce include birouri, spatii de depozitare, grupuri sanitare si bucatarie mobilata

Finisaje si dotari

Spatiul este pregatit pentru activitati comerciale sau de servicii, fiind echipat cu:

  • tavane casetate, podele cu gresie + mocheta

  • geamuri termopan si tamplarie PVC

  • sistem de supraveghere video si alarma

  • senzori pentru incendiu, iluminat exterior

  • finisaje calitative in toate incaperile
  • centrala termica individuala si calorifere

Puncte de interes

Pozitionarea acestui spatiu este una strategica, in zona Bd. Decebal – Piata Muncii, cu vad pietonal si auto intens. In imediata apropiere se afla:

  • statia de metrou Piata Muncii

  • Registrul Comertului

  • parcarea subterana Muncii

  • numeroase restaurante, cafenele si sedii corporate

Aceasta locatie intens tranzitata, ofera o vizibilitate excelenta si accesibilitate maxima, fiind ideala pentru companii ce doresc sa fie prezente intr-o zona de top a Capitalei.

Potentiale utilizari

Datorita suprafetei, compartimentarii si expunerii, spatiul este potrivit pentru:

  • sedii bancare sau institutii financiare

  • clinici medicale, laboratoare, centre de diagnostic

  • showroom-uri de produse si servicii

  • sedii corporate cu functiune mixta birouri – front office

  • servicii profesionale (notariat, avocatura, contabilitate)

  • alte activitati comerciale sau de servicii ce necesita expunere premium si acces facil

Pret si modalitati de plata

Pret inchiriere: 8.500 Euro / luna + TVA 

Se achita si contravaloarea unei luni de chirie pentru garantie.

    Trimite mesaj


    Marius Lazarescu

    Marius Lazarescu

    0738.294.999marius.lazarescu@sudrezidential.roProgrameaza vizionare

    Distribuie linkul unui prieten pe

    Banner

    Alte anunturi asemanatoare

    Spatiu comercial de inchiriat, amplasare stradala, 700 mp, vad comercial, zona Bd. Metalurgiei

    Spatiu comercial de inchiriat, amplasare stradala, 700 mp, vad comercial, zona Bd. Metalurgiei

    Sector 4, rond Metro Berceni, Bd. Metalurgiei, Parcul Tudor Arghezi
    12 €/mp (+ TVA)
    700mp
    25ml deschidere
    The Grand Kristal Residence City Metalurgiei Faza II
    Spatiu comercial, 500 mp, ansamblu rezidential cu vad comercial, trafic intens, Sector 4

    Spatiu comercial, 500 mp, ansamblu rezidential cu vad comercial, trafic intens, Sector 4

    Sector 4, rond Metro Berceni, Bd. Metalurgiei, Parcul Tudor Arghezi
    12 €/mp (+ TVA)
    500mp
    20ml deschidere
    The Grand Kristal Residence City Metalurgiei Faza II
    ID: 116509
    Spatiu comercial de inchiriat, 400 mp, parter, ansamblu rezidential premium, Sectorul 4

    Spatiu comercial de inchiriat, 400 mp, parter, ansamblu rezidential premium, Sectorul 4

    Sector 4, rond Metro Berceni, Bd. Metalurgiei, Parcul Tudor Arghezi
    12 €/mp (+ TVA)
    400mp
    15ml deschidere
    The Grand Kristal Residence City Metalurgiei Faza II

    SudRezidential.ro iti ofera o experienta cat mai personalizata in procesul de cautare a proprietatii imobiliare potrivite. In acest scop folosim cookie-uri pentru a personaliza continutul anunturilor si pentru a analiza traficul.

    Trimite Mesaj
    Suna
    Locatie
    WhatsApp Devino partener