Spatiu comercial premium, sediu birouri, 258 mp, 11 parcari, Bd. Metalurgiei

Aparatorii Patriei, rond Metrou Berceni, Bd. Metalurgiei, The Grand Kristal, Aparatorii Patriei
VANDUT
S.T. 257.52mp
Latime: 52ml
Inaltime: 3.5
An: 2019
ID Anunt: 96643

Caracteristici

  • Suprafata total utila:257.52mp
  • Latime vitrina:52
  • Inaltime:3.5
  • An constructie:2019
  • Regim inaltime:P+8e
  • Compartimentari:Rigips, caramida, beton

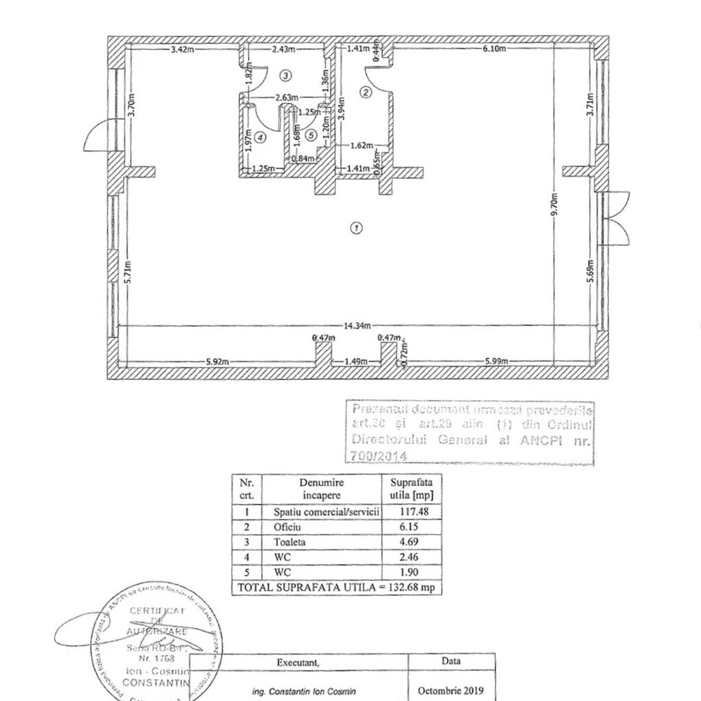
Schita proprietate
Schita proprietate

Finisaje si dotari

  • parchet
  • gresie
  • faianta
  • vopsea lavabila
  • obiecte sanitare

Prezentare

Spatiu comercial premium cu vizibilitate excelenta si finisaje de lux – Kristal Residence, Drumul Jilavei – Bd. Metalurgiei

Va prezentam o oportunitate rara de investitie: doua spatii comerciale alipite, transformate intr-un sediu reprezentativ, situat la parterul unui imobil nou din cadrul ansamblului Kristal Residence, zona Drumul Jilavei – Metalurgiei, din Sectorul 4, Bucuresti.

Imobilul beneficiaza de vad comercial excelent, trafic pietonal si auto intens, si vizibilitate maxima din trei laturi ale cladirii.

PREZENTAREA SPATIULUI

  • Suprafata totala utila: 257.52 mp (conform schitelor cadastrale – 132.68 mp + 124.84 mp)
  • Acces multiplu – intrari si iesiri generoase din mai multe puncte, vitrina continua, cu suprafata vitrata ampla (din tavan pana in podea) pe trei laturi ale cladirii.
  • 11 locuri de parcare dedicate, dispuse pe doua laturi, cu acces direct din Drumul Jilavei si din drumul de servitute aferent complexului.

DOTARI SI FINISAJE PREMIUM

🔹 Podele placate cu placi ceramice de mari dimensiuni, ultra luxoase
🔹 Pereti decorativi finisati cu San Marco – Italia si riflaje moderne din lemn
🔹 Tavane casetate cu sistem de iluminat LED integrat
🔹 Sistem audio performant, integrat in toata zona open space
🔹 Aparate de climatizare de ultima generatie in toate incaperile
🔹 Sisteme de ventilatie cu recuperare de caldura, pentru aport de aer proaspat
🔹 Sistem Smart integrat Google si control digital al ambientului
🔹 Sistem de alarma si supraveghere video 360° cu echipamente moderne

COMPARTIMENTARE

– Zona principala open-space – ideala pentru activitate comerciala, showroom, birouri reprezentative
2 grupuri sanitare complet echipate, ultra moderne 
-Zona tehnica si spatiu de depozitare cu infrastructura voce-date si internet de mare viteza
-Bucatarie complet mobilata si utilata + zona de servit masa tip insula

AVANTAJE CHEIE

✅ Vizibilitate excelenta din 3 directii
✅ Fatada moderna, vitrata complet, ideala pentru branding
✅ Acces rapid catre Bulevardul Metalurgiei si infrastructura comerciala dezvoltata
✅ Potrivit pentru: clinica medicala, centru educațional, banca, showroom, reprezentanta, co-working, sediu corporate sau activitati comerciale diverse

Acest spatiu comercial a fost proiectat si amenajat cu o atentie deosebita la detalii, avand in vedere atat functionalitatea, cat si confortul angajatilor si clientilor. Fiecare element – de la finisajele premium, sistemele de climatizare si ventilatie inteligenta, pana la compartimentarea eficienta si dotarile tehnice – a fost gandit pentru a oferi cele mai bune conditii de lucru, indiferent de domeniul de activitate.

Designul elegant, ambientul modern si infrastructura completa transforma acest spatiu intr-o alegere ideala pentru cei care cauta un sediu reprezentativ, de lux, care sa inspire profesionalism si incredere. O investitie sigura si vizibila, cu beneficii reale atat pe termen scurt, cat si pe termen lung.

Puncte de interes

Spatiul comercial este situat in Sectorul 4, Bucuresti, in inima proiectului Metalurgiei Park (Faza 1), vizavi de Parcul Tudor Arghezi, un punct de atractie important ce poate genera flux constant de clienti pentru diverse tipuri de afaceri: cafenele, restaurante, servicii, retail, clinici sau showroom-uri.

  • Bulevardul Metalurgiei este una dintre cele mai tranzitate artere din sector, atat auto, cat si pietonal, iar amplasarea directa a spatiului la bulevard ofera un avantaj comercial major in termeni de expunere si vizibilitate.
  • Acces facil din Drumul Jilavei si Bulevardul Metalurgiei
  •  In imediata apropiere se regasesc statii STB ce asigura conexiuni rapide cu statiile de metrou si cu principalele puncte de interes ale zonei.
  • In zona se afla si Berceni Arena Sport Center, patinoar construit la standarde olimpice, care contribuie la dinamica si atractivitatea comerciala a intregii zone.
  • Numarul limitat de spatii comerciale in Metalurgiei Park transforma aceasta proprietate intr-o oportunitate rara de investitie, cu beneficii pe termen lung.

In imediata vecinatate a spatiului comercial se regasesc unele dintre cele mai importante centre comerciale din zona de sud a Capitalei: Metro, Auchan, Jumbo, Lidl, Kaufland, Carrefour si Profi, toate amplasate la distante reduse, in cadrul unui pol comercial bine dezvoltat. Prezenta acestor retaileri consolideaza vadul comercial al zonei si genereaza un flux constant de clienti, atat rezidenti, cat si vizitatori. Spatiul beneficiaza astfel de un amplasament strategic, in mijlocul unei zone cu putere de cumparare si activitate economica intensa. Sectorul 4 – Cel mai modernizat Sector din Capitala: https://www.sudrezidential.ro/de-ce-sa-ti-cumperi-o-locuinta-in-sectorul-4/

Pret si modalitati de plata

Pret de vanzare: 876.000 Euro + TVA

In situatia in care proprietatea este achizitionata de catre o societate comerciala inregistrata in scopuri de TVA, in vederea unei investitii sau dezvoltari, se poate aplica mecanismul taxarii inverse, conform prevederilor Codului Fiscal, pentru cota standard de TVA de 19%, cu respectarea conditiilor legale privind operatiunile intre persoane impozabile.

*Sunt incluse in pret si 11 locuri de parcare Aceasta proprietate se poate achizitiona prin orice tip de credit bancar sau prin plata numerar.

Daca inca nu stiti ce tip de credit este mai avantajos pentru dumneavoastra, departamentul nostru financiar Credit24h.ro va sta la dispozitie in vederea identificarii solutiei potrivite de finantare si intocmirii dosarului bancar pentru obtinerea creditului necesar achizitiei.

Efectueaza rapid o simulare de credit online accesand linkul atasat si verifica-ti gratuit eligibilitatea:https://simulator.credit24h.ro/

Alexandru Costache

Alexandru Costache

0738.294.999alexandru.costache@sudrezidential.roProgrameaza vizionaresau

    Trimite mesaj


    WHATSAPP

    Calculator rate

    Introdu caracteristicile creditului pe care vrei sa il accesezi, iar calculatorul iti va afisa intregul context pentru creditul dorit.

    min 25.000 €
    max 1.000.000 €
    min 158994 €
    max 529980 €
    Ani
    min 1 an
    max 30 ani
    Calculeaza acum
    Calculator rate

    * Calculatorul de rate are caracter pur informativ si nu are caracter angajant, de orice natura, pentru Sud Rezidential Real Estate SRL (www.sudrezidential.ro) sau SudRezidential Broker SRL (www.Credit24h.ro); * Dobânda DAE utilizata pentru calcul este pur orientativă și poate suferi oricand modificări valorice, în funcție de conditiile pietei financiar-bancare, profilul clientului și a perioadei de finanțare. * Acordarea unui credit este condiţionată de îndeplinirea condiţiilor de eligibilitate de catre solicitant. In functie de tipul de credit, institutia de finantare selectata, este posibil ca alte taxe si comisioane sau anumite conditii specifice sa fie aplicabile. Mai multe detalii pewww.credit24h.ro sau telefon 0731.111.600 Call Center Credit24h.ro

    Alte anunturi asemanatoare

    Spatiu comercial de vanzare, 80 mp, vitrina 10 ml, Drumul Fermei, Popesti – Leordeni

    Spatiu comercial de vanzare, 80 mp, vitrina 10 ml, Drumul Fermei, Popesti – Leordeni

    Metrou Dimitrie Leonida, Drumul Fermei, Popesti-Leordeni
    128.000 € (Nu se aplica TVA)
    79.57mp
    10ml deschidere
    ExclusivitateSpatiu comercial premium
    Spatiu comercial 123 mp, vitrina 15 ml, stradal Drumul Binelui – Bd Metalurgiei, Sector 4

    Spatiu comercial 123 mp, vitrina 15 ml, stradal Drumul Binelui – Bd Metalurgiei, Sector 4

    Sector 4, Drumul Binelui, Bd. Metalurgiei, Aparatorii Patriei
    350.000 € (+ TVA)
    123.14mp
    15ml deschidere
    ID: 115625
    Vanzare spatiu comercial cu venituri stabile, zona centrala Popesti-Leordeni, Ilfov

    Vanzare spatiu comercial cu venituri stabile, zona centrala Popesti-Leordeni, Ilfov

    Popesti Leordeni, central
    330.000 € (+ TVA)
    122mp
    26.8ml deschidere

    SudRezidential.ro iti ofera o experienta cat mai personalizata in procesul de cautare a proprietatii imobiliare potrivite. In acest scop folosim cookie-uri pentru a personaliza continutul anunturilor si pentru a analiza traficul.

    Trimite Mesaj
    Suna
    Locatie
    WhatsApp Plata esalonata