Apartament cu 3 camere, decomandat, gata de mutare – Drumul Fermei, Popesti-Leordeni

Metrou Dimitrie Leonida, Drumul Fermei, metrou Dimitrie Leonida, Popesti-Leordeni
157.000 € (Nu se aplica TVA)
Comision 0% cumpărătorRate lunare de la . Vezi detalii
3 Camere
Etaj: 5
S.U.: 72.61mp
S.U.T.: 83.97
Grup sanitar: 2
Balcon: 1
ID Anunt: 122348

Caracteristici

  • Suprafata utila:72.61mp
  • Suprafata total utila:83.97mp
  • Compartimentare:Decomandat
  • Regim inaltime:P+5e

Schita proprietate

Finisaje si dotari

  • parchet
  • gresie
  • faianta
  • vopsea lavabila
  • usi de interior
  • usa metalica antiefractie
  • obiecte sanitare
  • centrala termica apartament
  • calorifere
  • interfon
  • tamplarie PVC
  • balcoane zidite
  • balcon inchis
  • curte amenajata
  • gazon
  • gard
  • lift
  • aer conditionat

Prezentare

Apartament cu 3 camere, mobilat si utilat modern, gata de mutare – Drumul Fermei, Popesti-Leordeni

Va oferim spre vanzare un apartament cu 3 camere si 2 bai, cu compartimentare eficienta si functionala, situat la etajul 5/5 al unui imobil finalizat in anul 2013, prevazut cu lift modern.

Un avantaj important al cladirii este faptul ca peste ultimul etaj este turnata placa de beton, iar imobilul beneficiaza de pod tehnic termo si hidroizolat, contribuind semnificativ la izolatia termica si eficienta energetica a apartamentului.

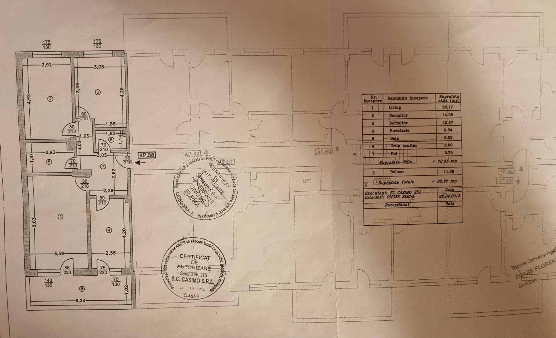
Locuinta are suprafata utila de 72.61 mp, la care se adauga un balcon generos de 11.36 mp, rezultand o suprafata totala de 83.97 mp.

Compartimentare interioara:

  • Living: 20.17 mp, cu acces direct catre balcon

  • Dormitor matrimonial: 14.36 mp

  • Dormitor secundar: 12.27 mp

  • Bucatarie inchisa: 9.84 mp

  • Baie principala: 5.22 mp

  • Baie secundara: 2.00 mp

  • Hol: 8.75 mp

  • Balcon: 11.36 mp

Apartamentul este dotat cu centrala termica proprie si aer conditionat, oferind confort termic optim pe tot parcursul anului. Imobilul este izolat termic exterior, asigurand costuri reduse de intretinere si un climat interior placut.

  • Magazin
  • Transport public
  • Scoala/Gradinita
  • Cafenea/Restaurant
  • Farmacie/Spital
  • Parcuri si zone de agrement

Puncte de interes

Amplasat pe strada Drumul Fermei, in Popesti-Leordeni, apartamentul beneficiaza de acces rapid la statia de metrou Dimitrie Leonida, cu legaturi directe catre principalele zone ale Bucurestiului, precum si conexiuni facile catre Centura Capitalei, DN4 si Autostrada A2.

In imediata vecinatate se afla toate facilitatile esentiale pentru un stil de viata confortabil:

  • Mega Image, Lidl, Kaufland, Profi, La Strada Mall, restaurante, cafenele si magazine variate

  • Centre comerciale mari, precum Sun Plaza Mall si Grand Arena Mall, aflate la doar cateva minute cu masina

Zona este ideala pentru familii, oferind acces la gradinite si scoli de stat si private dar si la centre medicale moderne, farmacii si cabinete medicale.

Pentru timpul liber, zona ofera acces la sali de fitnessspatii verzi si locuri de joaca, printre care Parcul Laurentiu Raiciu si Parcul Lumea Copiilor (Drumul Fermei), ideale pentru relaxare si activitati in aer liber.

Pret si modalitati de plata

Pret apartament: 157.000 Euro (Nu se aplica Tva) 

Aceasta proprietate se poate achizitiona prin orice tip de credit bancar sau plata numerar.

Daca inca nu stiti ce tip de credit este mai avantajos pentru dumneavoastra, departamentul nostru financiar Credit24h.ro va sta la dispozitie in vederea identificarii solutiei potrivite de finantare si intocmirii dosarului bancar pentru obtinerea creditului necesar achizitiei. 

Efectueaza rapid o simulare de credit online accesand linkul atasat si verifica-ti gratuit eligibilitatea: https://simulator.credit24h.ro/

    Trimite mesaj


    Camelia Vasile

    Camelia Vasile

    0729.572.570camelia.vasile@sudrezidential.roProgrameaza vizionare

    Distribuie linkul unui prieten pe

    Banner

    Alte anunturi asemanatoare

    Apartament cu 3 camere, complet mobilat si utilat, zona Rahova, Aleea Salaj, Sector 5

    Apartament cu 3 camere, complet mobilat si utilat, zona Rahova, Aleea Salaj, Sector 5

    Sector 5, Rahova, Targ Pucheni, Sos.Salaj, PEPCO, LIDL, Farmacia Tei
    124.000 € (Nu se aplica TVA)
    3 camere
    S.U.:61.76mp
    ID: 128311
    ExclusivitateMobilat si utilatzona Bd. Metalurgiei
    Apartament cu 3 camere, mobilat si utilat modern, zona Bd. Metalurgiei, metrou Aparatorii Patriei

    Apartament cu 3 camere, mobilat si utilat modern, zona Bd. Metalurgiei, metrou Aparatorii Patriei

    Sector 4, Drumul Binelui, Drumul Jilavei, Metrou Aparatorii Patriei, Bd. Metalurgiei
    165.000 € (Nu se aplica TVA)
    3 camere
    S.U.:67.18mp
    ID: 128137
    Aparatorii PatrieiMetalurgieiParc Tudor Arghezii
    Apartament 3 camere, complet mobilat si utilat, acces rapid metrou Aparatorii Patriei – Drumul Binelui Sector 4

    Apartament 3 camere, complet mobilat si utilat, acces rapid metrou Aparatorii Patriei – Drumul Binelui Sector 4

    Sector 4, Drumul Binelui, Bd. Metalurgiei, Aparatorii Patriei, Parc Tudor Arghezi
    169.000 € (Nu se aplica TVA)
    3 camere
    S.U.:67.4mp
    ID: 127819

    SudRezidential.ro iti ofera o experienta cat mai personalizata in procesul de cautare a proprietatii imobiliare potrivite. In acest scop folosim cookie-uri pentru a personaliza continutul anunturilor si pentru a analiza traficul.

    Trimite Mesaj
    Suna
    Locatie
    WhatsApp Devino partener